
美容室用トレーラーハウスについて
夢を叶える住宅クオリティの小さなお店
低コストで美容室・美容院・ビューティサロン等を実現できます
「動産」のトレーラーハウスを利用すれば、イニシャルコスト・ランニングコストとも建てるよりも低コストで、オリジナルな空間を手にすることができます。
美容室・美容院・ビューティサロンなど、オーナーの目的に応じてゼロから自由に製造できるため、
用途に合わせてオリジナリティ溢れるトレーラーハウスの製造・販売を行っております。
美容室用トレーラーハウス
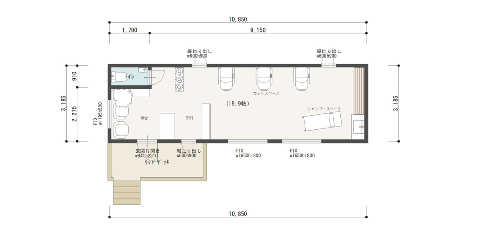
フルサイズ(ロフト無し)プランのご紹介

3.4M×11M 
| 基本サイズ | 幅3.4m×長さ11.0m×高さ4.1m以下 |
|---|---|
| 外部仕上 | 壁(窒業系サイディング)、屋根(ガルバリウム鋼板) |
| 設備 | ドア1ヵ所、窓9ヵ所、壁、床フローリング、電気設備(エアコン用コンセント付き、LED照明) |
| 用途 | 住宅用、事務所用、店舗用などカスタマイズ可能 |
| 参考価格 | 940万円(税込) |
ハーフサイズ(ロフト無し)プランのご紹介

3.4M×7.5M 
| 基本サイズ | 幅3.4m×長さ7.5m×高さ4.1m以下 |
|---|---|
| 外部仕上 | 壁(窒業系サイディング)、屋根(ガルバリウム鋼板) |
| 設備 | ドア1ヵ所、窓6ヵ所、壁、床フローリング、電気設備(エアコン用コンセント付き、LED照明) |
| 用途 | 住宅用、事務所用、店舗用などカスタマイズ可能 |
| 参考価格 | 820万円(税込) |
備考
- ※上記は一例です。全プラン、お好みで内装外装のデザインや色の変更、インテリア・設備の追加などを車のオプション感覚でお選び頂けます。
お打ち合わせの流れ
- 01 お問い合わせ
ご来社いただくか、こちらからお伺いしてお打ち合わせをします。 トレーラーハウスは、なかなか身近で接することがないですから、何ができて、何ができないのかなどお客様には分からないことだらけかと思います。お客様が前もって書かれた希望の間取りや、他社で見積ってもらった間取りなどがあれば、遠慮なさらず見せてください。
- 02 来場・見学
ご予約後トレーラーハウスのモデルハウスをご案内します。 実際のトレーラーハウスをご確認いただき、サイズ感や仕上がりのイメージを元に、お客様のご希望や今後の予定をお伝えいたします。
- 03 お見積り
どの様な家で暮らしたいかしっかりと伺います。ご家族に合ったオンリーワンのトレーラーハウスプランをご提案いたします。
- ※上記は一例です。まずは、気になったことを何でもお気軽にお問い合わせください。お客様がご納得いただけるトレーラーハウスを追求します。







