- ※画像はイメージです。実際の商品とはデザイン・仕様が一部異なる場合がございます。
弊社が熊本県阿蘇市で運営している「ホテルトレーラーシップガーデン阿蘇」1号棟
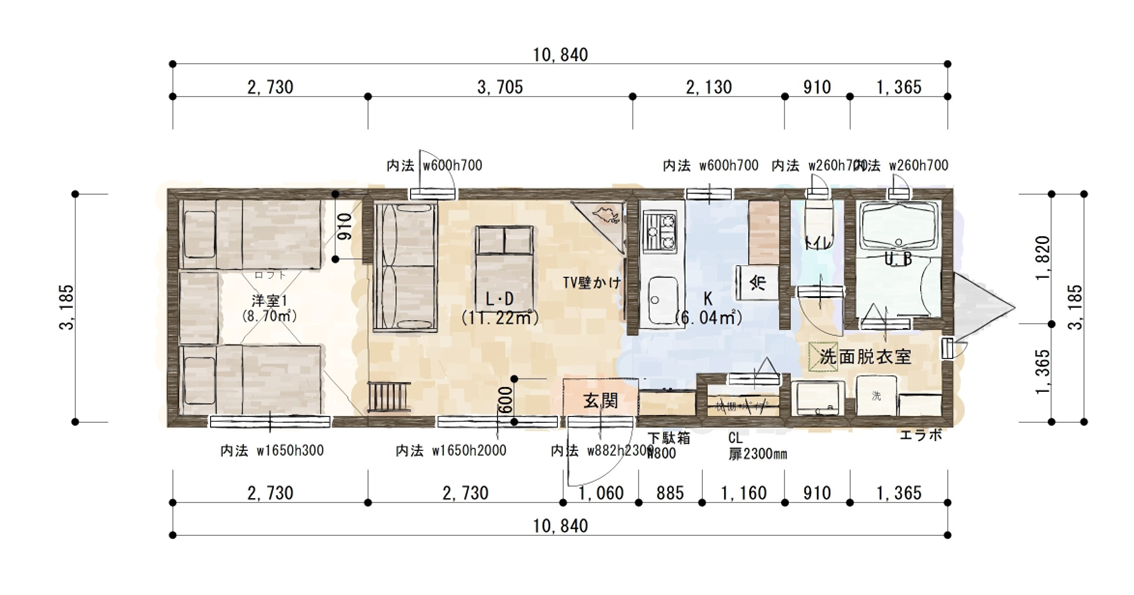
サイズ:幅3.4m×長さ11m
設備:お風呂、キッチン、トイレ、ロフト、壁掛けTV、クローゼット、ウッドデッキ、玄関ドア(電子錠)など
≪間取り≫


宿泊予約はこちら
↓
| 依頼主 | ホテルTRAILER SHIP GARDEN 阿蘇(https://www.airbnb.jp/rooms/1453948974593572883?guests=1&adults=1&s=67&unique_share_id=c14b260d-be7a-4638-8a5c-3e48c031a459) | |
|---|---|---|
| プラン |
|
|
| 用途 | ホテル、宿泊用 | |
| オプション | ウッドデッキ、シューズボックス、シーリングファン照明など | |
| 施工期間 | - | |
| 地域 | 熊本県阿蘇市 |
- ※掲載の料金は税込価格です。
- ※ご利用目的に応じて、様々なサイズ・デザイン・オプションの中からご希望に合わせてお選びいただけます。
- ※トレーラーシップは、トレーラーハウスという新しい住居・店舗形態の魅力をより多くの方々に伝え、日々最適なトレーラーハウスの提案を行っています。

















