- ※画像はイメージです。実際の商品とはデザイン・仕様が一部異なる場合がございます。
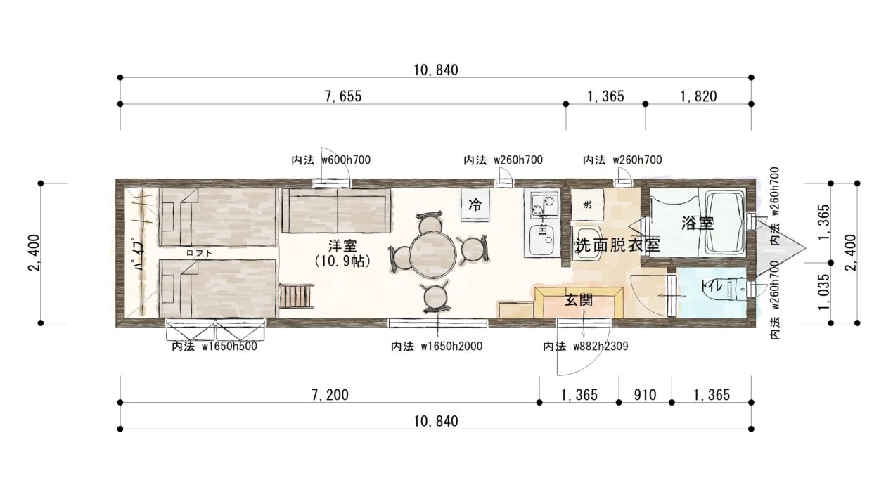
弊社が熊本県阿蘇市で運営している「ホテルトレーラーシップガーデン阿蘇」2号棟
サイズ:幅2.5m×長さ11m
設備:お風呂、キッチン、トイレ、ロフト、壁掛けTV、ウッドデッキ、玄関ドア(電子錠)など


ホテルご予約は↑からお願いいたします。
| 依頼主 | 合同会社トレーラーシップ | |
|---|---|---|
| プラン | ||
| 用途 | ホテル | |
| オプション | 玄関ドア電子錠、ウッドデッキなど | |
| 施工期間 | - | |
| 地域 | 熊本県阿蘇市 |
- ※掲載の料金は税込価格です。
- ※ご利用目的に応じて、様々なサイズ・デザイン・オプションの中からご希望に合わせてお選びいただけます。
- ※トレーラーシップは、トレーラーハウスという新しい住居・店舗形態の魅力をより多くの方々に伝え、日々最適なトレーラーハウスの提案を行っています。

















